中古物件
土地343.75㎡(109.98坪)、 建物73.91㎡(23.87坪)。木造セメント瓦葺平家建。現況渡しの価格です。解体についてもご相談ください。
- 価格
- 390万円
- 中古戸建
- 間取
- 4DK
|
|
- 所在地
- 宮崎県延岡市 佐野町
- 交通
- JR日豊本線延岡駅 バス(工内 分 停歩1分)
住居付き店舗。1階店舗部一部が賃貸中。月額33,000円の家賃収入あり。2階が居住スペース5DK。
- 価格
- 400万円
- 中古戸建
- 間取
- 5DK
|
|
- 所在地
- 宮崎県延岡市 無鹿町1丁目
- 交通
- JR日豊本線延岡駅
土地134.17㎡(40.58坪)、建物135.63㎡ (約41.02坪) 6DKファミリー向け住宅
- 価格
- 600万円
- 中古戸建
- 間取
- 6DK
|
|
- 所在地
- 宮崎県延岡市 桜園
- 交通
- JR日豊本線延岡駅 徒歩15分
土地107.60㎡(32.54坪) 建物153.64㎡(46.47坪) 木造瓦葺2階建の中心市街地の収益物件。
- 価格
- 800万円
- 店舗
|
|
- 所在地
- 宮崎県延岡市 祇園町
- 交通
- JR日豊本線延岡駅 バス(祇園町バス停 分 停歩1分)
土地201.788㎡(61.03坪) 、建物約85㎡(未登記あり)。接道西4m道路。解体についてもご相談ください。
- 価格
- 830万円
- 中古戸建
- 間取
- 4DK
|
|
- 所在地
- 宮崎県延岡市 緑ヶ丘3丁目
- 交通
- JR日豊本線南延岡駅 徒歩1323m 徒歩17分
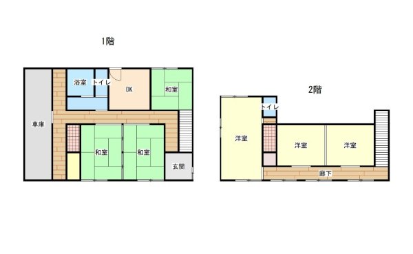
土地239.56㎡(72.46坪)、 建物106.63㎡(32.25坪)増築有。木造セメント瓦葺2階建。解体についてもご相談ください。
- 価格
- 980万円
- 中古戸建
- 間取
- 4DK
|
|
- 所在地
- 北一ケ岡
- 交通
- JR日豊本線 徒歩9分
土地287.75㎡(87.04坪)、建物100㎡(約30坪)増築有。木造セメント平屋建。土地としての活用もご相談ください。
- 価格
- 1260万円
- 中古戸建
- 間取
- 4DK
|
|
- 所在地
- 宮崎県延岡市 一ヶ岡3丁目
- 交通
- JR日豊本線旭ケ丘駅 徒歩16分

価格
面積



























